Plan maison bois plain-pied en tuiles et piscine

Un nouveau projet de maison bois qui nous ramène aux ambiances de vacances en bord de mer. Cet avant-projet est proposé par l’agence Trecobois, constructeur de maison bois à la Rochelle.

Demande de contact

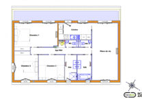
Pour ce qui est de l’architecture de la maison, les équipes de Trecobois ont pris en compte à la fois les contraintes parcellaires et les désirs des clients. L’architecture entièrement linéaire permet d’avoir des pièces de vie exposées Sud-Ouest pour améliorer le confort thermique à l’intérieur. L’implantation de la maison au fond du jardin laisse la possibilité d’ajouter une piscine enterrée aux abords de la terrasse qui prolonge l’espace vie en extérieur.

Une construction cloisonnée

Toutes les pièces de la maison sont bien séparées. Sur le plan, on distingue une cuisine fermée avec une porte coulissante, une grande pièce de vie permettant d’accueillir un coin salon et un espace pour une salle à manger. Compte tenu de la surface de la cuisine, les repas du quotidien seront pris dans la salle à manger.
Depuis la pièce de vie, un dégagement de plusieurs mètres carrés donne accès aux 3 chambres, à la salle d’eau, à la salle de bain et aux deux WC.
Compte tenu du fait que la maison est prévue pour de la location saisonnière pouvant accueillir 6 personnes maximum, il est plus confortable d’ajouter deux WC et deux pièces d’eau. Pour limiter au maximum la perte d’espace, toutes les portes intérieures de la maison sont des portes à galandage directement intégrées dans le mur.

Un plain-pied parfait pour les vacances !

Ce plain-pied est idéal pour accueillir des vacanciers qui souhaitent visiter la Charente-Maritime et ses marais salants.
Compte tenu des températures qui peuvent parfois être élevées en été, un auvent qui surplombe la terrasse est presque un indispensable. En plus d’avoir un coin d’ombre pour déjeuner tranquillement mais aussi pour se reposer, il permet de rafraichir l’intérieur de la maison.

Modèle :
Plan maison bois avec piscine - Plan maison bois plain pied 3 chambres - Plan maison bois plain-pied
Composé de :
Une cuisine fermée, un salon séjour, une salle de bain, une salle d'eau, deux WC, 3 chambres.

 

Vous aussi vous souhaitez construire une maison de vacances dans le 17 ?

Demande de contact

logo trecobois

> S’abonner à la Newsletter

> Parrainer un proche avec le Club Trecobat