Plan maison bois bardage gris et toit tuiles

Avec ses lignes épurées et son bardage gris contemporain, ce plan de maison bois plain-pied s’inspire des codes esthétiques du sud-ouest tout en répondant aux exigences actuelles de performance énergétique. Un plan de maison réalisé par l’agence Trecobat, constructeur maison bois à Royan.

Demande de contact

Façade et matériaux

L’harmonie visuelle de ce projet repose sur un savant mélange de matériaux nobles. Le bardage Douglas gris apporte une touche naturelle et authentique, tandis que les volets blancs créent un contraste élégant qui rappelle le charme des maisons traditionnelles du sud-ouest. La toiture tuiles complète cette esthétique intemporelle en s’intégrant parfaitement dans le paysage architectural régional.

Construction et performance

Cette maison de 90m² adopte une construction à mur à ossature bois, garantissant une excellente performance thermique. L’isolant en laine minérale assure un confort optimal en toutes saisons, tandis que la conception RE2020 place ce projet à la pointe des normes environnementales actuelles.

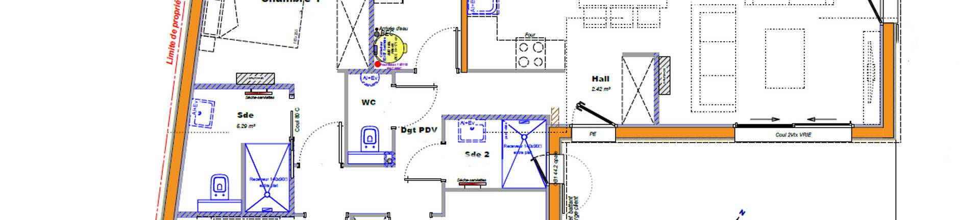
Aménagements intérieurs pensés pour le confort

Espaces de vie optimisés

La distribution intérieure révèle une approche réfléchie de l’aménagement. La création de deux espaces distincts structure intelligemment les volumes : une pièce de vie avec cuisine et salle à manger regroupée ainsi qu’un salon indépendant favorisant la convivialité et l’intimité.

La zone nuit comprend 3 chambres avec de grands espaces prévus pour installer des placards, optimisant ainsi le rangement sans compromettre la circulation. Cette conception anticipe les besoins pratiques des occupants tout en préservant la luminosité naturelle.

L’aménagement inclut 2 salles de douche dont l’une avec WC attenant, ainsi qu’un WC seul avec lave-main, offrant un confort d’usage optimal pour une famille. Cette configuration répond aux standards modernes de l’habitat résidentiel.

Innovation technologique et réglementaire

L’intégration d’une VMC connectée hygroréglable témoigne de l’approche technologique avancée de ce projet. Ce système adapte automatiquement la ventilation selon l’humidité ambiante, optimisant ainsi la qualité de l’air intérieur et les performances énergétiques.

Adaptabilité réglementaire

Conçu pour s’adapter aux contraintes du PLU local, ce plan peut être implanté en limite de propriété selon les réglementations communales. Cette flexibilité facilite l’intégration du projet dans différents contextes urbains.

Pourquoi choisir ce plan de maison plain-pied ?

Le plan de maison traditionnelle du sud-ouest revisité offre :

  • Une esthétique intemporelle grâce au mariage du bardage bois et des éléments traditionnels
  • Une performance énergétique optimisée conforme aux dernières réglementations
  • Une distribution fonctionnelle adaptée aux modes de vie actuels
  • Une adaptabilité aux différentes contraintes réglementaires locales
Modèle :
Plan maison bois bardage gris - Plan maison bois plain pied 3 chambres - Plan maison bois plain-pied
Composé de :
Un hall d'entrée, une pièce de vie, un cellier, 3 chambres, 2 salles de douche, un WC, un terrasse bois

logo trecobois

> S’abonner à la Newsletter

> Parrainer un proche avec le Club Trecobat