Plan maison bois plain-pied en longueur et toiture tuiles

A travers cet avant-projet, Trecobois présente une maison en ossature bois de plain-pied conçue pour les familles en quête d’une construction saine, performante et ancrée dans son environnement. Son architecture en longueur, son bardage en Douglas naturel posé à l’horizontale et sa toiture double pente en tuiles lui confèrent un caractère affirmé, typique des architectures du Sud de la France, tout en restant sobre et intemporelle.

Demande de contact

Une ossature bois à haute performance thermique

La structure de cette maison repose sur un système à ossature bois avec laine minérale intégrée directement dans les murs porteurs. Ce procédé constructif offre une isolation particulièrement efficace, hiver comme été, en régulant naturellement la température intérieure peu importe les conditions climatiques extérieures. Le confort d’été est ainsi garanti sans recours systématique à la climatisation, un atout essentiel dans les régions à ensoleillement élevé.

La toiture à double pente reçoit des tuiles traditionnelles, accompagnées de gouttières nantaises installées en limite de propriété pour une intégration soignée.

Des menuiseries conçues pour la lumière et la ventilation naturelle

Cet avant-projet accorde une attention particulière à la qualité des menuiseries. La pièce de vie bénéficie d’une grande baie vitrée 4 vantaux entièrement sur-mesure, conçue pour inonder le séjour de lumière naturelle et créer une continuité visuelle avec l’espace extérieur. Une fenêtre 1 vantail complète cet apport lumineux.

Les chambres sont équipées de fenêtres 1 vantail à ouverture oscillo-battante, adaptées à une aération quotidienne maîtrisée. Deux velux de toit viennent compléter le dispositif : l’un positionné dans la chambre en limite de propriété est motorisé avec volet roulant intégré, pour une gestion sans contrainte pour la ventilation et l’occultation. Le second, situé dans la salle de douche, garantit un renouvellement d’air naturel dans cette pièce d’eau.

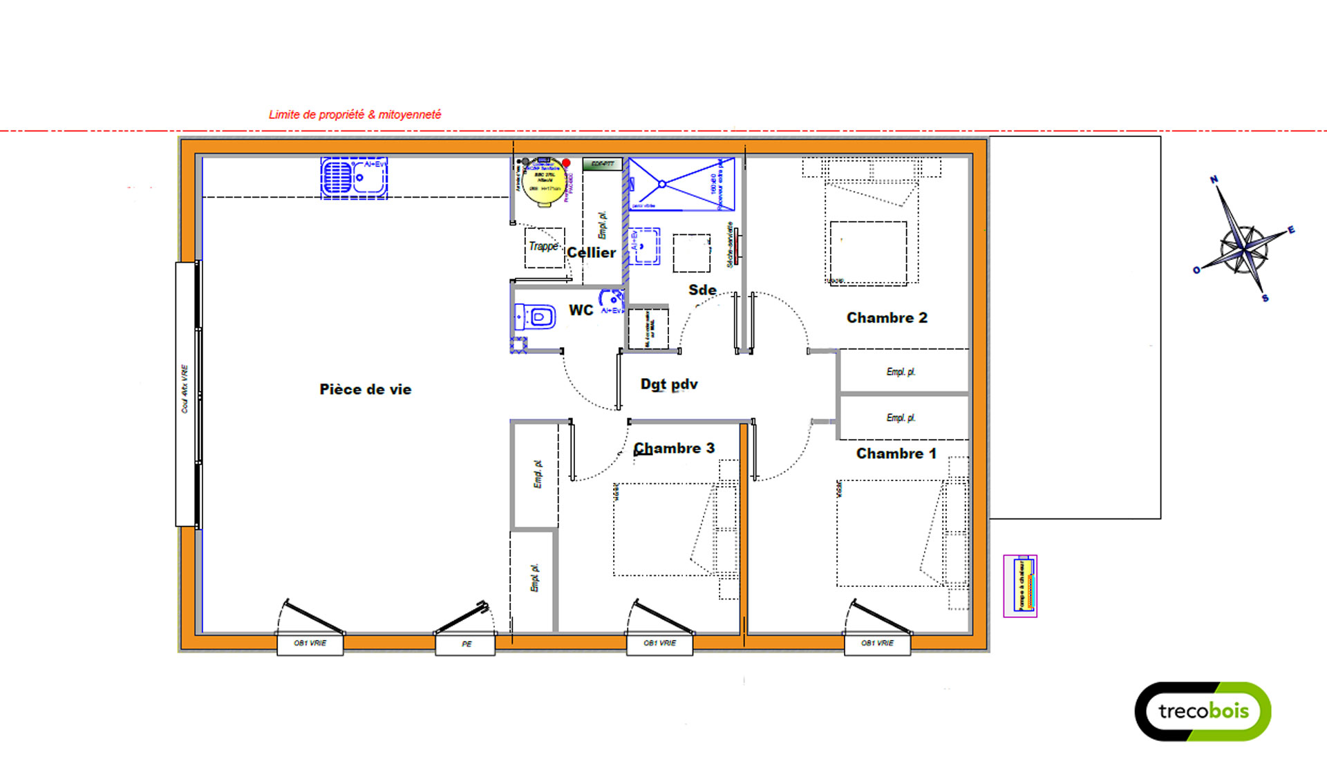
Un plan plain-pied organisé en deux espaces bien distincts

La conception de la maison repose sur une organisation fonctionnelle du plan, articulée autour de deux zones clairement identifiées.

L’espace de vie, de forme rectangulaire, regroupe la cuisine aménagée, la salle à manger et le salon dans un volume généreux et facilement personnalisable selon les envies de chaque famille.

L’espace nuit, entièrement desservi par un couloir central, comprend trois chambres dotées chacune d’un grand placard intégré, ainsi qu’une salle de douche. Les WC sont indépendants et équipés d’un lave-main pour plus de praticité au quotidien.

Des équipements modernes pour une maison basse consommation

Ce plan de maison est doté d’une pompe à chaleur air/air associée à un chauffage au sol pour un confort thermique homogène dans l’ensemble de la maison. La production d’eau chaude sanitaire est assurée par un ballon thermodynamique, particulièrement économe en énergie. La salle de douche dispose d’un sèche-serviettes électrique.

La gestion centralisée des volets roulants simplifie le pilotage de l’ensemble des occultations depuis un point unique. La ventilation mécanique contrôlée hygroréglable détecte en temps réel le taux d’humidité de l’air intérieur et adapte automatiquement son fonctionnement en conséquence, garantissant une qualité d’air optimale en toutes circonstances.

Modèle :
Plan maison bois 80m² - Plan maison bois plain pied 3 chambres - Plan maison bois plain-pied
Composé de :
Une pièce de vie avec une cuisine ouverte, une salle à manger, un salon, un WC indépendant, 3 chambres, une salle de douche, un cellier, un terrasse, un jardin

logo trecobois

> S’abonner à la Newsletter

> Parrainer un proche avec le Club Trecobat