Plan maison bois plain-pied légèrement arrondi

Trecobois, constructeur de maisons en bois à Toulouse, vous présente cet avant-projet de maison plain-pied au design légèrement arrondi, spécialement conçu pour maximiser l’ouverture sur l’extérieur. Cette conception architecturale singulière permet d’orienter la majorité des pièces de vie vers la piscine et ses espaces extérieurs, créant ainsi une véritable continuité entre l’intérieur et le jardin.

Ce plan de maison de plain-pied en ossature bois se distingue par sa toiture double pente recouverte de tuiles. L’architecture contemporaine et épurée de ce projet permet aux propriétaires de facilement se projeter.

Demande de contact

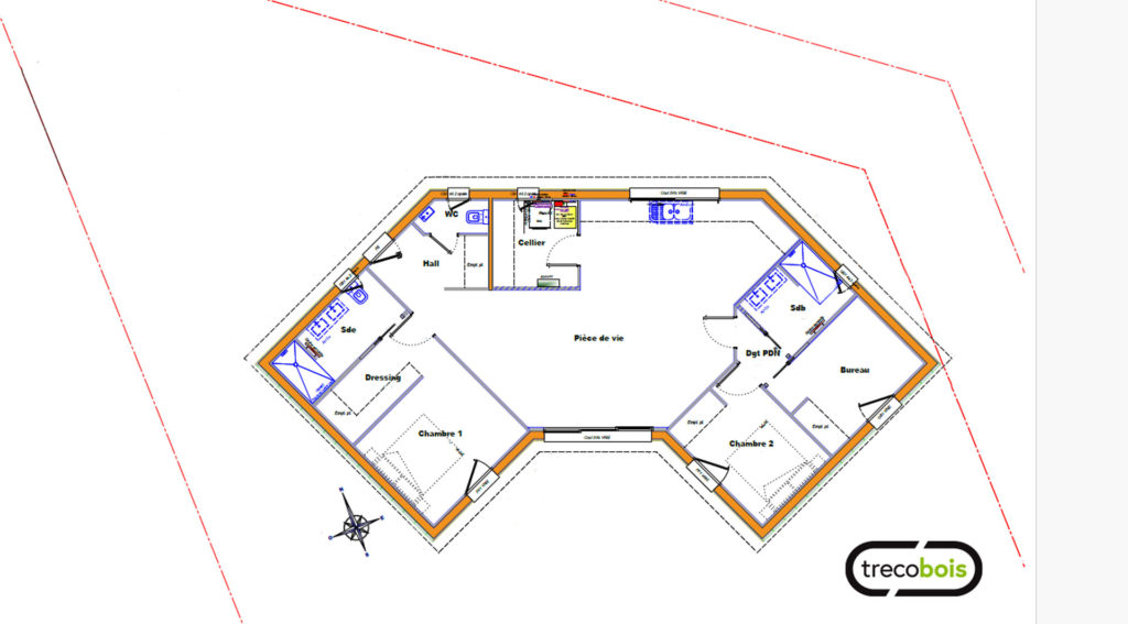
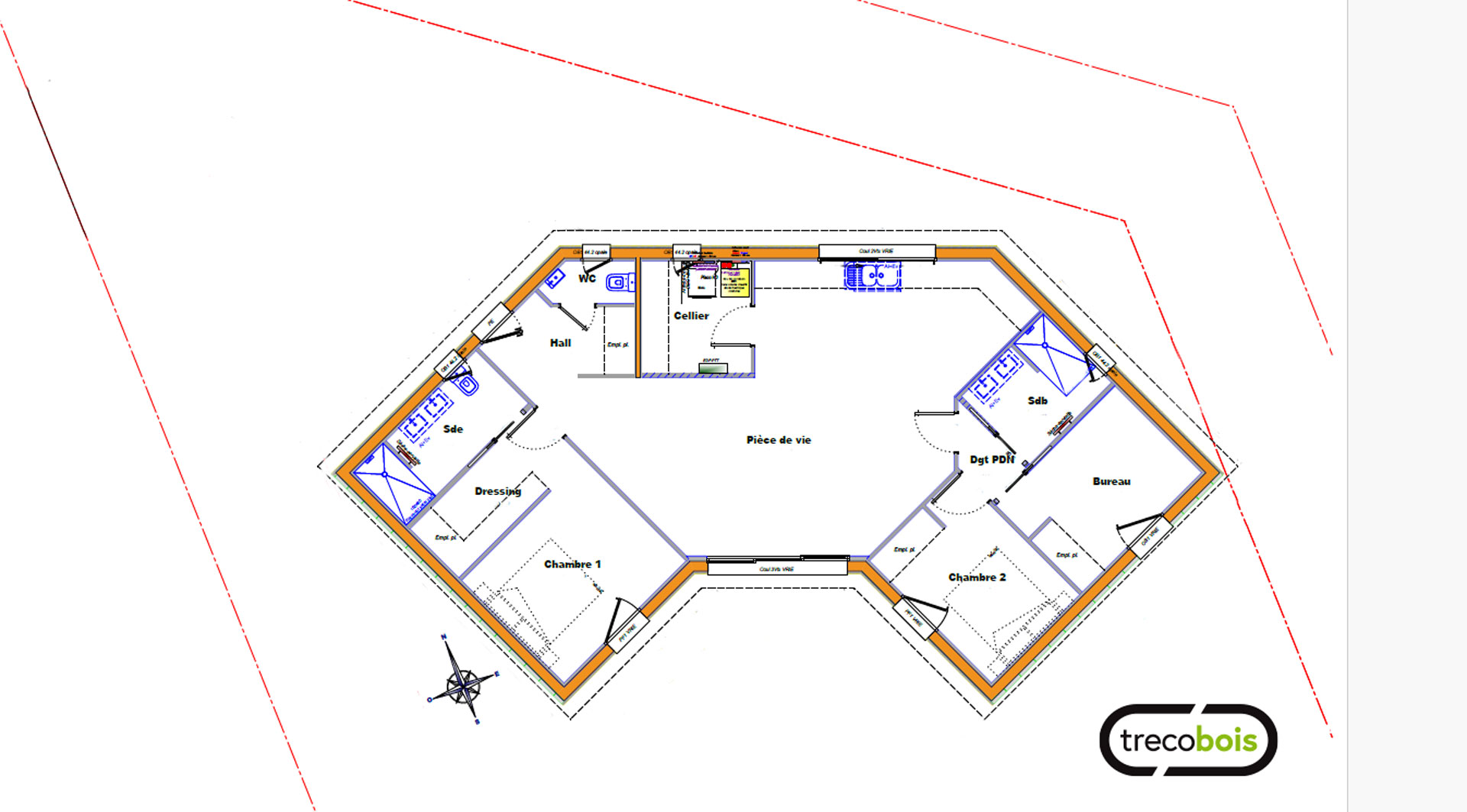
Une distribution intelligente : trois espaces de vie distincts

L’espace jour : le cœur convivial de la maison

La pièce de vie centrale constitue le point névralgique de cette maison plain-pied. Dès l’entrée, un hall d’accueil fonctionnel dessert un WC indépendant, offrant ainsi le confort nécessaire pour accueillir vos invités.

La cuisine ouverte a été pensée pour optimiser l’espace : le mobilier est stratégiquement accolé aux murs de la maison, libérant ainsi un maximum de surface au sol pour la circulation et les moments de convivialité. Un cellier attenant offre des rangements supplémentaires indispensables pour stocker denrées alimentaires, chaussures, manteaux et équipements du quotidien.

Cette configuration en plan ouvert favorise les échanges et la luminosité, tout en maintenant une fluidité de circulation remarquable entre les différentes zones de la maison.

L’espace nuit des parents : une suite parentale privilégiée

D’un côté de la pièce de vie se trouve une véritable suite parentale, véritable havre de paix conçu pour le confort des propriétaires. La chambre parentale bénéficie d’un accès direct sur la terrasse, permettant de profiter pleinement de l’extérieur dès le réveil.

Cet espace intime comprend :

  • Un dressing ouvert offrant de généreux volumes de rangement
  • Une salle de douche complète équipée d’un WC, d’un meuble double vasque et d’une élégante douche à l’italienne

Cette suite forme un véritable cocon indépendant au sein de la maison, garantissant intimité et fonctionnalité.

L’espace nuit secondaire : modularité et intimité

De l’autre côté de la pièce de vie, un second espace de nuit a été conçu avec une grande modularité d’usage. Accessible depuis un petit dégagement, cette zone préserve l’intimité de ses occupants et sépare clairement les univers jour et nuit.

Cet espace polyvalent comprend :

  • Une grande chambre dotée d’un emplacement pour placard intégré
  • Un bureau multifonction pouvant aisément se transformer en buanderie, chambre d’ami, salle de sport ou espace de détente selon vos besoins
  • Une salle de douche équipée d’un meuble double vasque et d’une douche à l’italienne

Cette configuration offre une flexibilité d’aménagement idéale pour s’adapter à l’évolution de votre famille ou pour accueillir des invités en toute indépendance.

Performances techniques et confort : les garanties Trecobois

Isolation thermique et acoustique

Cette maison en ossature bois intègre une isolation en laine minérale de 20 mm directement dans les murs, garantissant d’excellentes performances thermiques et acoustiques. Cette solution constructive assure un confort optimal en toutes saisons, tout en réduisant significativement vos dépenses énergétiques.

Bardage bois naturel et durable

L’enveloppe extérieure de cette maison plain-pied est habillée d’un bardage bois Douglas naturel de classe 3, reconnu pour sa durabilité et sa résistance naturelle aux intempéries. Ce choix de matériau noble confère à la construction une esthétique chaleureuse et authentique qui évoluera de façon harmonieuse avec le temps, sans nécessiter de traitement chimique.

Chauffage performant et écologique

Le confort thermique de cette maison est assuré par une pompe à chaleur alimentant un chauffage au sol dans l’ensemble des pièces. Cette solution de chauffage moderne offre une diffusion homogène et douce de la chaleur, tout en réalisant d’importantes économies d’énergie grâce à l’excellent coefficient de performance des pompes à chaleur.

Ventilation intelligente

Une VMC hygroréglable équipe cette maison plain-pied, adaptant automatiquement le débit de ventilation au taux d’humidité intérieur. Ce système garantit une qualité d’air optimale tout en limitant les déperditions thermiques, contribuant ainsi à l’efficacité énergétique globale de la construction.

Trecobois : votre projet de maison bois à Toulouse

Cet avant-projet illustre parfaitement l’expertise de Trecobois en construction de maisons en bois sur mesure dans la région toulousaine. Chaque détail architectural a été pensé pour créer un lieu de vie confortable, fonctionnel et économe en énergie.

Vous souhaitez en savoir plus sur ce projet ou discuter de votre propre projet de construction de maison en bois ? Contactez les équipes de Trecobois pour transformer vos envies en réalité et bénéficier d’un accompagnement personnalisé tout au long de votre projet de construction.

Modèle :
Plan maison bois 100m² - Plan maison bois avec piscine - Plan maison bois plain pied 2 chambres
Composé de :
Un hall d'entrée, un WC, une pièce de vie ouverte avec salon et séjour, une cuisine ouverte, une suite parentale avec salle de douche et dressing, un chambre, une salle de douche, un bureau, une terrasse, une piscine

logo trecobois

> S’abonner à la Newsletter

> Parrainer un proche avec le Club Trecobat