Plan maison bois à étage rectangulaire

Vous êtes à la recherche d’un constructeur pour réaliser la maison qui vous correspond dans le 56 ? Vous appréciez le design du bois et les performances thermiques qu’il procure ? Trecobois, constructeur de maison bois à Auray vous accompagne dans votre projet.

Demande de contact

Projet bois et alucobond pour un effet moderne et naturel

Cette maison est entièrement en ossature bois recouverte d’un bardage bois Douglas naturel de classe 3. Ce matériau n’est pas sujet à la déformation et dispose d’une excellente solidité. C’est un bardage qui dure dans le temps et qui résiste aussi bien aux différents insectes qu’aux éventuels champignons. Pour renforcer la maison et apporter une touche d’originalité, les menuiseries extérieures sont encadrées par des panneaux d’alucobond.

Un extérieur authentique

Pour apporter un côté atypique à la maison et son extérieur, une terrasse enterrée est ajoutée au projet. Grâce à son implantation la prise au vent est moins importante et le vis-à-vis est réduit. Cela permet de créer un véritable cocon de bien-être en extérieur. Un endroit que les propriétaires vont adorer exploiter pour se détendre.

Une construction à étage

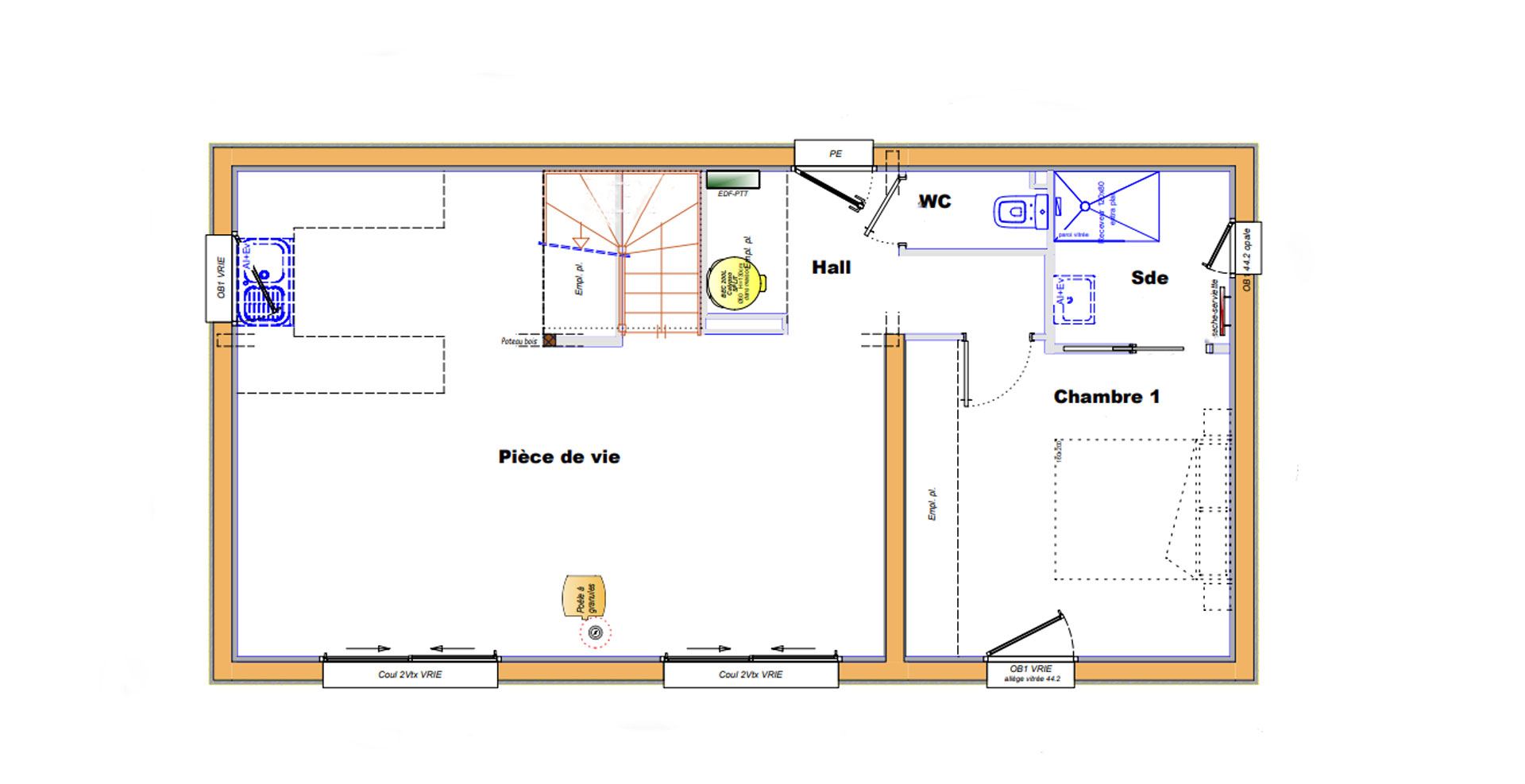
Concernant l’intérieur de la maison, le rez-de-chaussée comprend un hall d’entrée donnant un accès direct sur la pièce de vie ou bien la suite parentale. La cuisine ouverte est légèrement excentrée à l’arrière de l’escalier.
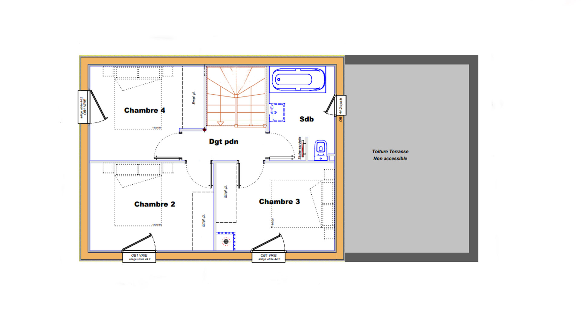
A l’étage on retrouve 3 grandes chambres avec une salle de bain séparée. L’étage est exclusivement réservé aux enfants et aux invités quand cela est nécessaire. L’une des trois chambres sert également de bureau.

Modèle :
Plan maison bois 100m² - Plan maison bois 4 chambres - Plan maison bois à étage
Composé de :
Un hall d'entrée, une pièce de vie avec cuisine ouverte, un WC, une suite parentale avec salle d'eau, 3 chambre et une salle de bain

Vous souhaitez construire une maison bois dans le Morbihan ?

Demande de contact

logo trecobois

> S’abonner à la Newsletter

> Parrainer un proche avec le Club Trecobat