Plan maison bois plain-pied bardage claire voie

Un projet de construction d’une maison bois de plain-pied près de Dinan ? Faites confiance à Trecobois, constructeur de maison bois à Dinan pour réaliser la maison de vos rêves.

Demande de contact

Pour un aspect moderne et chaleureux, le bardage qui recouvre l’ossature bois est un Douglas naturel faux claire-voie. Ce type de bardage est très apprécié par son esthétisme et l’effet naturel qu’il dégage.
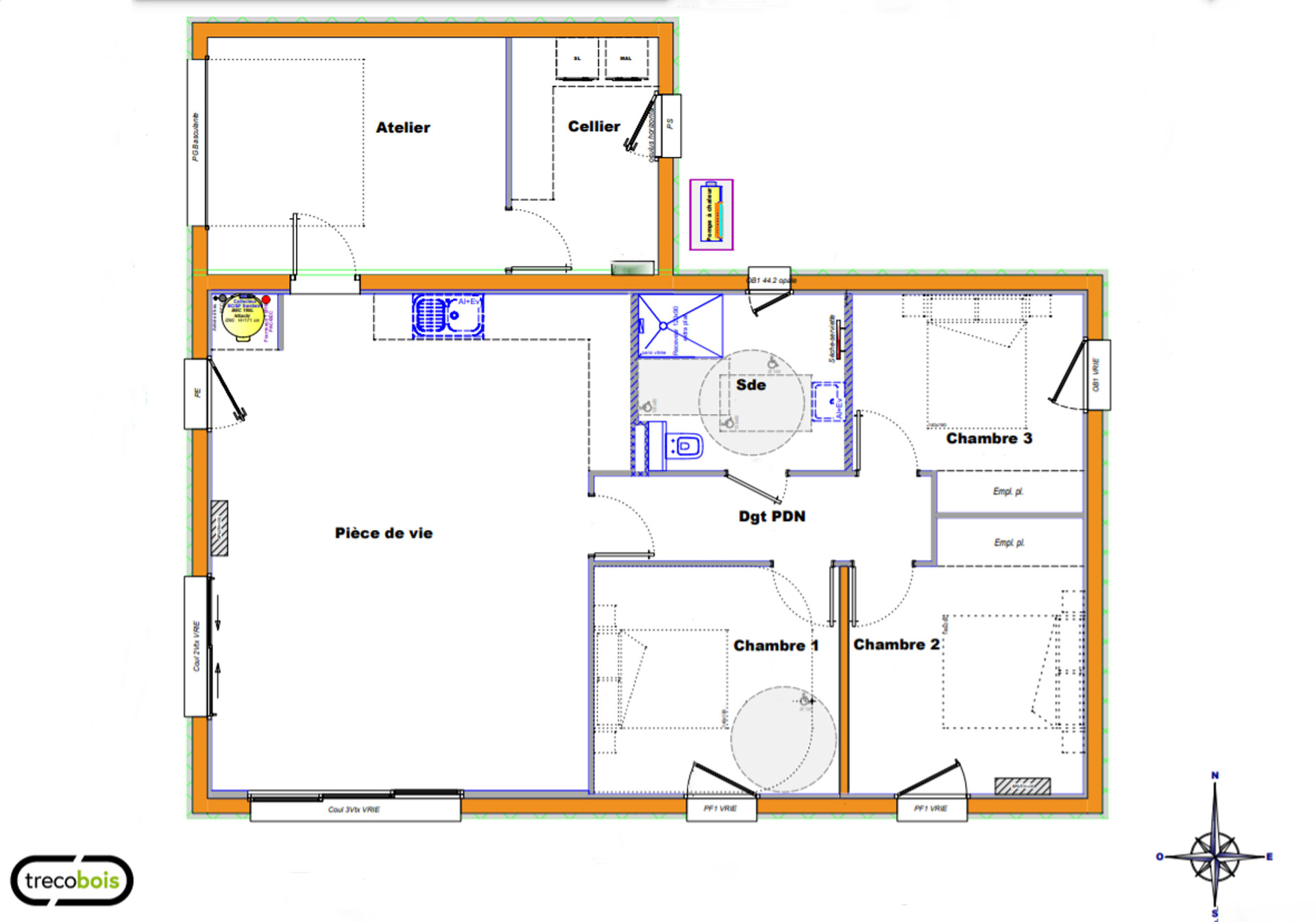
Concernant, ce plan de maison bois plain-pied 3 chambres, la toiture de la maison il s’agit d’un toit double pente ardoise. Le toit du garage est un toit plat en acrotère.

Des espaces optimisés et lumineux

Ce plain-pied dispose d’un garage attenant. Un cellier est construit dans le prolongement du garage. Cet espace peut servir de buanderie en installant le lave-linge et le sèche-linge ainsi qu’un grand placard pour ranger les chaussures et les manteaux.
La propriétaire souhaitait une pièce de vie spacieuse et lumineuse. Afin de répondre à sa demande, une baie vitrée 3 ventaux est installée avec une exposition plein sud et une baie vitrée 2 ventaux à l’ouest. Dès qu’il y a un peu de soleil, les rayons reflètent sur les baies vitrées et viennent réchauffer l’intérieur. Grâce à ces baies vitrées, un excellent confort thermique est assuré au sein de la maison.
En ce qui concerne l’aménagement de la pièce de vie, la cuisine est ouverte sur le salon/séjour. Pour optimiser au mieux l’espace, la salle à manger est utilisée pour les repas du quotidien.
L’espace nuit se compose de 3 grandes chambres et d’une salle d’eau. Les WC sont intégrés à la salle d’eau pour gagner en espace.
Cette maison est conforme à la RE2020, la nouvelle réglementation environnementale entrée en vigueur le 1er octobre 2021.

Modèle :
Plan maison bois plain pied 3 chambres - Plan maison bois plain-pied
Composé de :
Un garage, un cellier, une pièce de vie avec cuisine ouverte, 3 chambres et une salle d'eau

Vous avez un projet de construction de maison bois à Dinan ?

Demande de contact

logo trecobois

> S’abonner à la Newsletter

> Parrainer un proche avec le Club Trecobat