Plan maison bois de plain-pied en L et 4 chambres

Direction le Finistère Nord pour découvrir un avant-projet réalisé par Trecobois, constructeur de maison bois à Morlaix. Encore une fois ce projet met en avant les capacités de notre bureau d’études à s’adapter aux demandes des clients pour concevoir un projet unique et sur mesure.

Demande de contact

Cette maison de plain-pied en ossature bois est recouverte d’un bardage bois en pose vertical ainsi que des panneaux d’alucobond pour encadrer les menuiseries.

Une exposition plein sud

L’implantation de la maison s’est faite dans le fond du jardin pour que les propriétaires puissent profiter d’une exposition favorable à l’ensoleillement.
L’implantation de la maison dépend du règlement du lotissement et/ou des règles d’urbanisme auxquelles vous pouvez être confrontés. De plus, avec la nouvelle réglementation environnementale RE2020, les constructeurs de maison ont pour obligation de favoriser le confort thermique au sein de la maison et donc de tenir compte de l’implantation de la maison par rapport à l’exposition du soleil.

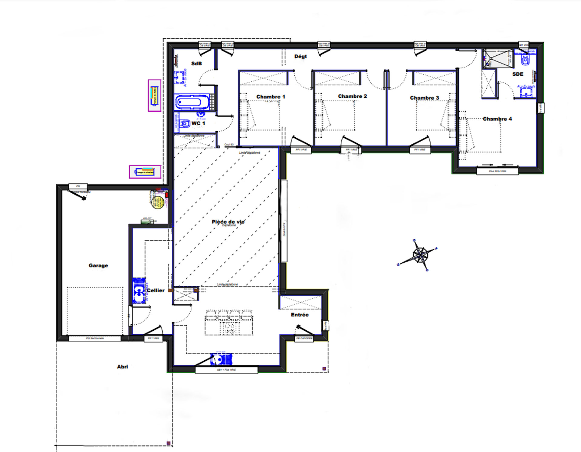
Une construction en L

D’un côté il y a la pièce de vie avec le salon/séjour et la cuisine ouverte sur cet espace convivial. Un cellier sépare le garage de la cuisine et fait office de buanderie mais aussi d’arrière cuisine. Depuis la pièce de vie les propriétaires profitent d’une vue plongeante sur la piscine enterrée grâce à la baie vitrée quatre ventaux installée.
Concernant l’espace nuit, toutes les chambres sont implantées les unes après les autres et sont toutes accessibles depuis un même couloir. La dernière chambre est la suite parentale avec une salle d’eau attenante. A l’entrée du couloir on retrouve des WC et une salle de bain que les enfants utilisent quotidiennement.

Modèle :
Plan maison bois 4 chambres - Plan maison bois plain-pied
Composé de :
Un garage, un cellier, une cuisine ouverte, un salon/séjour, 3 chambres, une salle de bain, un WC, une suite parentale avec salle d'eau et WC

Vous avez un projet de construction de maison de plain-pied à Morlaix ou dans les environs ?

Demande de contact

logo trecobois

> S’abonner à la Newsletter

> Parrainer un proche avec le Club Trecobat