Plan maison bois plain-pied en L et toiture en tuiles

Ce projet de construction met à l’honneur les maisons typiques du Sud-Ouest de la France. Découvrez les caractéristiques de cette maison réalisée par Trecobois, constructeur de maisons bois à La Rochelle (17).

Demande de contact

Tuiles, bardage blanc, piscine enterrée pour un projet 100% charentais !

La maison est construite en forme de U. Les propriétaires souhaitaient avoir un environnement convivial à l’intérieur comme à l’extérieur. C’est la raison pour laquelle, la terrasse épouse parfaitement le creux du U et surplombe la piscine enterrée. Grâce à cette configuration, la pièce de vie est la pièce maitresse de l’habitation.

Pour recouvrir l’ossature bois, les propriétaires ont choisi un bardage Sylverwood Extra de couleur blanche pour s’accorder avec les tuiles en terre cuite. En choisissant ce bardage, les propriétaires respectent le style architectural de la région tout en apportant une touche de modernité avec les panneaux en alucobond. On remarque également que l’espace nuit est représenté par un toit plat.

Un confort thermique assuré

Cette maison est équipée d’une VMC Renson® qui promet une excellente qualité de l’air intérieur. Grâce à cette VMC connectée, la ventilation de ces pièces est assurée quotidiennement. Une application permet également de vérifier l’air pièce par pièce et d’activer ou non la VMC.

Concernant la partie chauffage, une pompe à chaleur Panasonic alimente l’ensemble de la maison. Compte tenu du fait que la maison est un plain-pied, toutes les pièces sont chauffées à l’aide d’un plancher chauffant. Un convecteur d’appoint, de type sèche serviette, est prévu dans la salle de bain en complément.

En plus des équipements, les maisons à ossature bois profitent de performances thermiques et d’isolation très performantes. Elles sont d’ailleurs 12 fois plus performantes qu’une maison traditionnelle. De plus, grâce à l’ossature, le bois capte la chaleur extérieure, complétée avec de nombreuses baies coulissantes, le chauffage n’a parfois pas besoin de se déclencher.

Quid de l’agencement de la maison ?

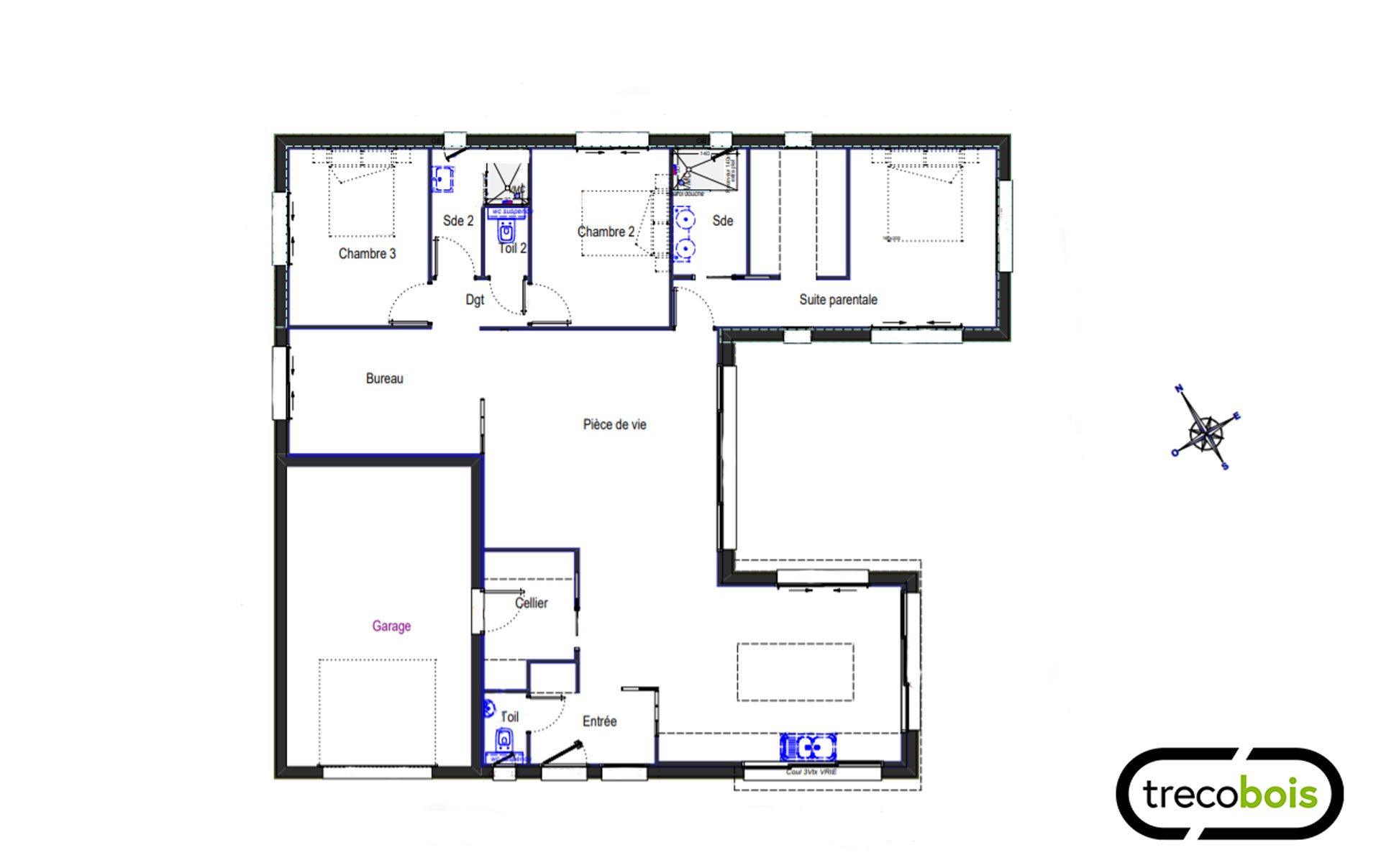
L’espace nuit de la maison est positionnée au nord. Cette implantation permet de garder les chambres et la suite parentale légèrement à l’ombre en cas de forte chaleur. La pièce de vie est composée d’un salon séjour et d’une cuisine aménagée. Un bureau semi-ouvert est ajouté au projet pour permettre aux propriétaires de télétravailler.

Modèle :
Plan maison bois avec piscine - Plan maison bois plain pied 3 chambres - Plan maison bois plain-pied
Composé de :
Un garage, un cellier et un hall d'entrée, une pièce de vie, un bureau, une suite parentale avec salle d'eau et dressing, deux chambres et une salle d'eau

Ce projet de maison vous plait ? Vous avez un projet de construction de maison bois en Charente-Maritime ?

Demande de contact

logo trecobois

> S’abonner à la Newsletter

> Parrainer un proche avec le Club Trecobat