Grande maison bois familiale

Une maison familiale confortable et chaleureuse réalisée par l’agence Trecobois, constructeur maison bois Auray.

Demande de contact

Une construction rectangulaire pour de grands espaces à Saint-Armel

La forme rectangulaire de la maison donne une impression de grandeur. Un second rectangle est accolé à la maison, il s’agit du garage.
De l’extérieur, nous imaginons des espaces intérieurs spacieux et baignés de lumière grâce aux nombreuses menuiseries installées. Les différentes menuiseries : gerbières, le trio de fenêtres fixes en hauteur ainsi que les baies vitrées personnalisent le projet.

Une construction proche d’un bâtiment de France

Le fait que la maison se trouve proche d’un bâtiment de France, quelques contraintes en matière de construction et d’architecture ont été imposée à Corine, la propriétaire de la maison. Le toit de la maison, un toit double pente ardoisé typique des constructions Bretonnes. Les gerbières, elles aussi rappellent ce style breton des années 50.
Trecobois, constructeur de maison bois à Auray, a su prendre en compte les contraintes imposées par la commune et a pu imaginer un projet sur-mesure qui se démarque des autres maisons du quartier.

Un étage exclusivement réservé à la détente et aux invités

Corine a opté pour une construction avec étage afin d’avoir un espace nuit supplémentaire. L’étage est composé d’une grande chambre et d’une salle d’eau séparée par les escaliers réalisés sur mesure. Une grande mezzanine occupe la moitié de l’étage. Cet espace est prévu pour accueillir une grande bibliothèque et le transformer en coin lecture agrémenté de nombreux coussins, poufs…

La mezzanine s’arrête au niveau du séjour. Au lieu d’installer une cloison murale, Corine a opté pour un garde-corps réalisé spécialement pour ce projet afin d’avoir un maximum de lumière à la fois dans la mezzanine que dans la cuisine / séjour. Les deux Velux® de toit placés au-dessus de la pièce de vie sont motorisés afin de pouvoir aérer la pièce et créer des courants d’air.
De l’autre côté de la maison, dos à la chambre d’amis de l’étage, les combles ne sont pas aménageables. Par contre, la VMI de Ventilairsec® a été installée dans cet espace.

Un rez-de-chaussée parfait pour le quotidien

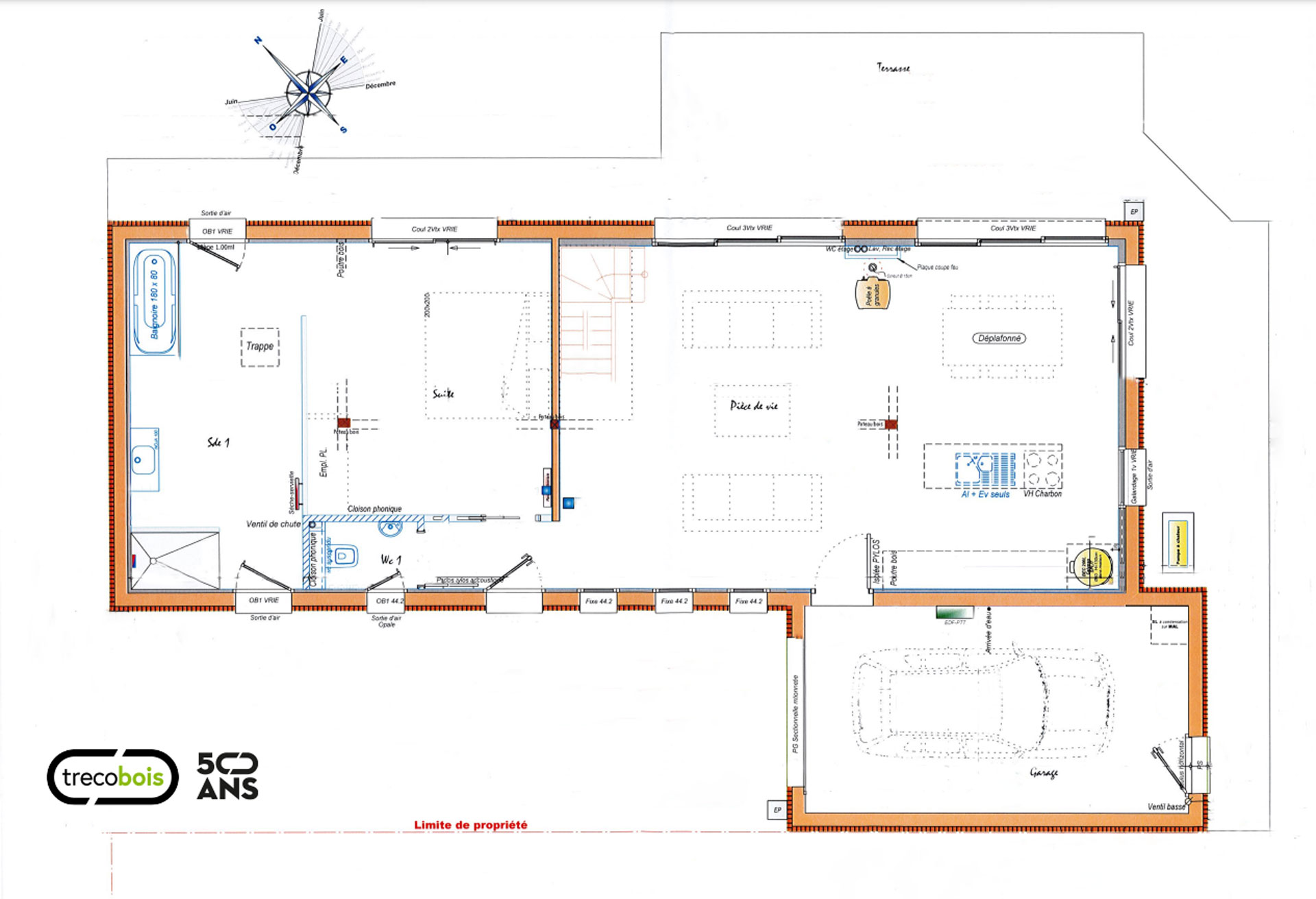
Le rez-de-chaussée est séparé en deux espaces. D’un côté il y a la pièce de vie donnant sur un coin salon. La cuisine aménagée et ouverte donne sur la salle à manger qui ne font qu’un seul et même espace. La partie repas (cuisine/salle à manger) et l’emplacement du salon sont délimités par une poutre en bois qui fait office de séparation.

Pour la décoration de la pièce de vie, la propriétaire a choisi des matériaux nobles, chaleureux et très moderne. La cuisine aménagée noire et bois crée un rappel avec le bardage bois et les menuiseries de l’extérieur pour garder une certaine harmonie entre l’intérieur et l’extérieur.

Au sol, un carrelage imitation parquet a été installé. L’avantage du carrelage est qu’il demande moins d’entretien qu’un parquet et qu’il est possible d’avoir un plancher chauffant pour passer l’hiver les pieds au chaud.

Concernant l’espace nuit du rez-de-chaussée, Corine a décidé de se faire plaisir en ayant une grande suite parentale digne d’une chambre d’hôtel. La salle de bain est semi-fermée et elle est équipée d’une baignoire pour se détendre, d’une douche et d’un lavabo.

Ce projet réalisé par l’agence Trecobois Auray, démontre la capacité de nos équipes à s’adapter au style de vie des clients pour leur proposer un projet personnalisé.

Emplacement :
Saint-Armel (56)
Composé de :
Un garage, une grande pièce de vie, une suite parentale, un WC, une mezzanine, une chambre, une salle de d'eau.
Constructeur :
Trecobois Auray

Vous envisagez de construire une maison bois contemporaine ?

Demande de contact

logo trecobois

> S’abonner à la Newsletter

> Parrainer un proche avec le Club Trecobat