Découverte d’une spacieuse maison bois plain-pied réalisée par l’agence Trecobois, constructeur maison bois Lannilis. Architecture, décoration, équipements… Tout a été imaginé pour que le confort des vacanciers soit bonifié et qu’ils sentent comme chez eux.
Une maison bois avec une architecture originale à Lannilis
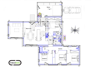
Trois rectangles construits en quinconce composent la maison. Le premier, au nord, est dédié au garage, le second pour la pièce de vie et la suite parentale. Enfin, le dernier est dédié à l’espace nuit des enfants. Jouer sur ces différents espaces en quinconce donne du volume à la maison.
L’architecture dévoile une maison moderne en raison de son bardage mixte, bois et alucobond mais aussi de son déplafonné dans la pièce de vie. En plus d’apporter de la hauteur et de luminosité à l’intérieur de la maison, il permet de casser l’esprit rectiligne de la construction. Pour maintenir le côté design de la construction, les menuiseries et les précadres sont de la même teinte que le bardage en alucobond.
L’intégralité de la maison est entourée d’une terrasse en bois synonyme que les espaces de vie peuvent également se poursuivre en extérieur. Le jacuzzi en contrebas de la terrasse le prouve !
Une grande partie des pièces de la maison bénéficient d’une exposition au sud, principalement la pièce de vie et les chambres. Cette orientation de la maison garantie un confort d’été toute l’année.
Étant donné qu’il s’agit d’une maison de vacances, la pièce de vie ainsi que la suite parentale et le WC accolé à la salle d’eau sont aux normes PMR.
Un intérieur digne d’un hôtel 4 étoiles
Côté aménagement, les propriétaires ont opté pour des grandes pièces spacieuses et lumineuses. Par exemple la pièce de vie est construite dans la longueur avec des espaces entièrement ouverts. La séparation se fait par le mobilier utilisé : plan de travail entre la cuisine et la salle à manger ou les éléments de décoration : murs en bardage bois claire voie dans le salon qui marque une séparation avec la salle à manger.
Pour accéder à l’espace nuit : suite parentale et chambres supplémentaires, une ouverture est positionnée dans la cuisine. Cette configuration donne l’impression de pénétrer dans un espace intime et reposant digne d’un institut de beauté.
Côté décoration, les propriétaires ont fait appel à un architecte d’intérieur. Le marbre et le bois brut sont omniprésents, deux matériaux robustes et intemporels. Pour le mobilier, ils ont mélangé les styles avec de l’ancien et du moderne pour personnaliser les espaces et apporter une véritable touche d’originalité.
- Emplacement :
- Lannilis (29)
- Composé de :
- Un garage, un cellier, une grande pièce de vie, une suite parentale, 2 WC, 3 chambres, un terrasse, un jacuzzi extérieur
- Constructeur :
- Trecobois Lannilis
Vous souhaitez construire une maison bois design dans le Finistère ? Faites appel à nos collaborateurs. Nous disposons de nombreuses agences de construction à Brest, Lannilis, Landerneau, Morlaix, Quimper et Pont l’Abbé pour réaliser le projet de vos rêves.
