Zoom sur une maison bois à étage atypique, réalisée par Trecobois, constructeur maison bois Nantes ! Cette grande maison bois a été construite à Bouguenais, en Loire-Atlantique (44).
Ses lignes atypiques, et sa toiture cintrée en zinc, séduisent par leur originalité.
De l’extérieur, le ton est donné, le recours à deux bardages différents et le jeu original des volumes étonnent et donnent envie d’aller plus loin.
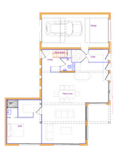
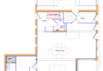
Au rez-de-chaussée, une entrée dessert un cellier et un WC, et donne accès à une vaste pièce de vie. On y trouve une cuisine moderne et fonctionnelle, ainsi qu’un salon et une salle à manger.
Non loin de là, bien que légèrement en retrait et au calme, le couple dispose d’une suite parentale avec dressing et salle d’eau privative.
Un bel escalier permet d’accéder à l’étage et à sa mezzanine. On trouve à ce niveau 3 chambres ainsi qu’une salle de bain avec WC séparé.
On apprécie l’agencement des espaces, les volumes et la lumière qui inonde chaque pièce. Les nombreuses ouvertures prévues à cet effet jouent leur rôle à merveille et offrent, en outre, une excellente vue sur l’extérieur.
- Emplacement :
- Bouguenais, Loire-Atlantique (44)
- Composé de :
- Un garage, un cellier, une entrée, une pièce de vie, une suite parentale, 3 chambres, une salle de bain, une mezzanine.
- Constructeur :
- Trecobois Nantes
Cette maison bois atypique vous plait ? Vous aussi vous souhaitez construire une maison bois sur-mesure ?

