Maison bois bicolore lignes cubiques et design

Cette remarquable maison en ossature bois a été conçue par Trecobois, constructeur de maison bois à Lannilis.

Demande de contact

Cette réalisation unique séduit immédiatement par sa construction cubique, dont les espaces se distinguent par un savant jeu de volumes et les différentes couleurs de bardage qui rythment harmonieusement les façades.

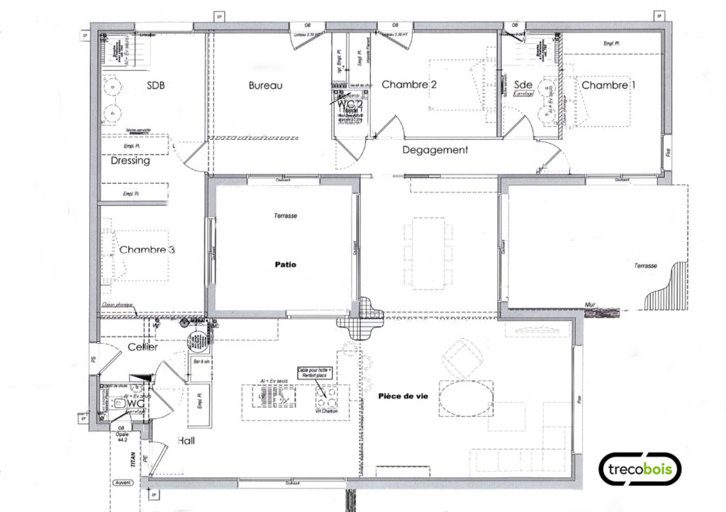
Conçue entièrement sur-mesure, cette maison plain-pied déploie ses espaces de vie avec une fluidité remarquable, créant un dialogue permanent entre l’intérieur et l’extérieur. L’architecture contemporaine s’enrichit de la présence d’un carport et d’un garage, assurant fonctionnalité et esthétisme.

Un art de vivre tourné vers l’extérieur

Cette maison remarquable se distingue par une nature omniprésente à l’intérieur comme à l’extérieur. Le patio accessible depuis la pièce de vie, la chambre parentale et le bureau crée une circulation fluide et une connexion constante avec l’environnement naturel.

En complément du patio, une terrasse en bois s’intègre à merveille dans le renfoncement de la pièce de vie. Partiellement couverte avec une pergola fixe, cette terrasse devient utilisable en tout temps, qu’il pleuve ou qu’il fasse beau, offrant aux propriétaires un espace de détente privilégié.

Des espaces de vie baignés de lumière

L’entrée de cette demeure d’exception se fait par une élégante porte d’entrée vitrée qui annonce déjà la philosophie de cette construction : faire entrer la lumière naturelle à flots. La pièce de vie spacieuse et lumineuse constitue le cœur battant de cette habitation, où chaque détail a été pensé pour le bien-être des occupants.

La cuisine se pare de mobilier blanc qui rend cet espace éclatant. Le châssis fixe dans la cuisine donnant sur le patio offre aux propriétaires un somptueux tableau naturel, créant une véritable œuvre d’art vivante qui évolue au fil des saisons.

Une palette chromatique inspirée par la nature

Le vert est omniprésent et constitue la ligne directrice de la maison. Cette couleur, symbole d’harmonie et de sérénité, se décline dans chaque espace avec subtilité. Un mur en peinture verte vient renforcer cette volonté de bien-être, de zénitude qui caractérise cette demeure.

Dans la salle à manger, la tapisserie noire et dorée souligne un décor prestigieux et élégant, créant un contraste raffiné avec la dominante verte de l’ensemble.

Des espaces nuit pensés comme des écrins de sérénité

Dans la chambre parentale, un pan de mur imitation jungle est posé en tête de lit, invitant les occupants à faire de beaux rêves dans un décor tropical apaisant.

La salle de bain transporte instantanément vers un univers tropical. Toujours ce vert au mur, le bois pour le mobilier, la planche de surf décorative et les plantes vertes créent une atmosphère d’évasion totale. Le carrelage imitation pierre dans la douche complète cette ambiance exotique, transformant cet espace en véritable salle de douche des îles. Un spa privé où chaque moment devient une parenthèse bien-être.

Des matériaux choisis avec soin

Pour les revêtements de sol, le choix s’est porté sur du carrelage imitation parquet dans la pièce de vie et du parquet foncé dans l’espace nuit, créant encore une fois un rappel avec les maisons des îles et renforçant cette atmosphère d’évasion permanente.

Cette réalisation Trecobois démontre une fois de plus l’expertise du constructeur dans la création de maisons bois sur-mesure, alliant performance énergétique, respect de l’environnement et art de vivre contemporain. Une maison où chaque jour devient une invitation au voyage, sans quitter le confort de chez soi.

Emplacement :
Landéda (29)
Composé de :
Un carport, un garage, un hall d'entrée, un cellier, une cuisine aménagée, un salon, une salle à manger, 2 chambres, une salle de douche, une suite parentale avec dressing et salle de douche, un patio, une terrasse
Constructeur :
Trecobois, constructeur de maison bois à Lannilis

logo trecobois

> S’abonner à la Newsletter

> Parrainer un proche avec le Club Trecobat