Les maisons bois plain-pied sont de plus en plus appréciées, notamment pour leur aspect design et pratique. Sans attendre… direction le Finistère (29) ! Nous vous faisons visiter une maison en bois plain-pied réalisée par Trecobois, constructeur maison bois Brest !
Envie d’une maison en bois spacieuse et agréable
Sylvie et Pascal souhaitait habiter une maison facile à vivre et ouverte tout en conservant des espaces d’intimité. Pari réussi pour cette maison qui accorde une grande importance à la pièce de vie principale.
Une maison ossature bois contemporaine à Landéda
À l’extérieur, un bardage bois red cedar abouté recouvre l’ossature bois de la maison. Un carport en bois s’intègre en harmonie avec l’entrée de la maison pour se mettre à l’abri et faciliter l’accès.
En quête d’une architecture moderne et épurée, le toit plat monopente s’est imposé comme un choix évident : pour son aspect contemporain et dans le respect des constructions environnantes.
Un habitat de plain-pied optimisé et lumineux
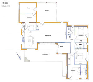
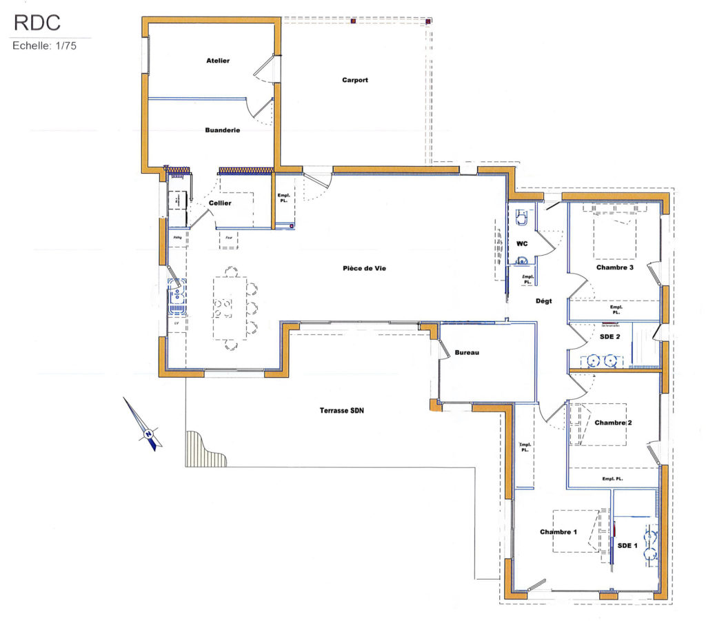
La pièce de vie se compose d’une cuisine – avec îlot central – semi-ouverte sur la salle à manger et le salon. Exposition Sud Sud-Ouest sur la façade vitrée de la pièce de vie. Objectif : offrir un maximum de luminosité et une vue reposante sur le jardin.
La maison dispose également de trois chambres accolées dont une suite parentale avec salle d’eau, douche à l’italienne en faïence et pare-douche vitré. Une seconde salle d’eau avec WC indépendants se situe à proximité des deux autres chambres et de la pièce de vie.
Une construction saine et confortable avant tout
Pour assurer la qualité de l’air intérieur de leur maison, Sylvie et Pascal ont opté pour un système de Ventilation Mécanique par Insufflation (VMI). Pour le chauffage, ils ont choisi sur une pompe à chaleur (PAC) avec bec thermodynamique.
Avec Nestor Ma Maison et Moi, les volets roulants électriques se pilotent par une commande centralisée. Idéal pour réguler facilement la luminosité et la température des intérieurs !
Comme toutes les maisons construites par Trecobois, cette maison à ossature bois est certifiée RT 2012 !
- Emplacement :
- Landéda (29)
- Composé de :
- Un carport, un atelier, une buanderie, un cellier, une pièce de vie avec cuisine ouverte, une suite parentale, 2 chambres, une salle d'eau, des WC séparés, un bureau et une terrasse.
- Constructeur :
- Agence Trecobois de Brest
