Dans un monde où le bien-être et l’écologie occupent une place centrale, Trecobois, constructeur de maisons en bois à Brest, a relevé un défi unique : créer un espace dédié aux professionnels de santé et du bien-être.
Un projet de maison bois sur-mesure pour les professionnels du bien-être
Cette construction innovante répond aux besoins spécifiques d’une cliente visionnaire souhaitant offrir un cadre exceptionnel aux thérapeutes, nutritionnistes, professeurs de médecine douce et coaches sportifs.
L’objectif ? Créer un lieu où ces professionnels peuvent organiser des ateliers dans un environnement propice à la détente, à la guérison et au bien-être.
L’expertise environnementale de Trecobois : un choix évident
Le choix de faire appel à Trecobois s’est imposé naturellement grâce aux promesses environnementales exceptionnelles :
- Murs à ossature bois : une structure naturelle offrant d’excellentes performances énergétiques
- Fabrication hors-site : un processus innovant réduisant considérablement les émissions de CO2 et limitant les déchets de construction
- Personnalisation complète : chaque projet est conçu sur-mesure selon les besoins spécifiques du client
- Isolation ultra-performante : une isolation thermique et phonique de pointe garantissant un confort optimal été comme hiver
Une architecture moderne et harmonieuse
Façade dynamique et contemporaine
L’esthétique de cette maison de bien-être frappe par son originalité. Les murs à ossature bois sont habillés d’un bardage en Douglas aux sens de pose variés, créant un jeu visuel captivant qui apporte du dynamisme à l’ensemble. Cette technique, signature de l’expertise Trecobois, permet de sortir de l’uniformité tout en conservant l’authenticité du bois.
Les panneaux d’alucobond intégrés à la façade apportent une touche de modernité, créant un contraste élégant avec la chaleur naturelle du bois Douglas.
Menuiseries aluminium et luminosité optimisée
Le choix de menuiseries en aluminium n’est pas anodin. Positionnées stratégiquement sur les façades sud-est et sud-ouest, elles maximisent l’apport de lumière naturelle dans les espaces de soins. Cette orientation réfléchie contribue non seulement au confort visuel des occupants, mais également à l’efficacité énergétique du bâtiment.
Toiture moderne et étanchéité parfaite
La toiture plate équipée d’une membrane PVC assure une étanchéité irréprochable, tout en s’inscrivant dans l’esthétique contemporaine de l’ensemble. Cette solution technique, parfaitement maîtrisée par les équipes Trecobois, garantit durabilité et performance.
Aménagements extérieurs : un écrin de verdure
Terrasse et espaces de détente
La terrasse en bois prolonge naturellement l’espace bien-être vers l’extérieur. Équipée d’un salon de jardin, elle offre aux professionnels et à leurs clients un lieu de relaxation supplémentaire, en parfaite harmonie avec la philosophie du lieu.
Jardin paysager et clôture naturelle
L’environnement paysager a été soigneusement pensé. Le jardin, parfaitement entretenu, est délimité par des matériaux naturels : palissade en bois et bandes de bruyère. Cette approche cohérente renforce l’identité écologique du projet tout en créant un cadre apaisant.
Les plantes vertes judicieusement disposées apportent des touches de couleur naturelle, renforçant l’atmosphère zen indispensable à ce type d’activité.
Conformité PMR et optimisation des espaces
Accessibilité et réglementation
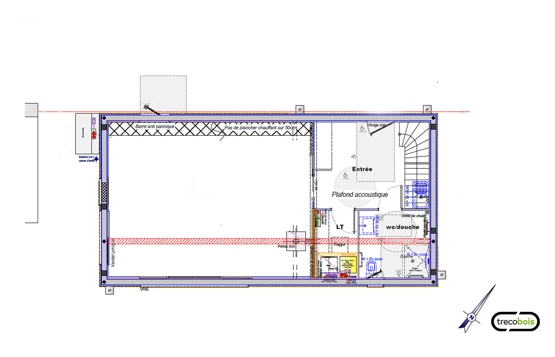
Construite sous le régime d’une SCI (Société Civile Immobilière) et destinée à accueillir du public, cette maison respecte scrupuleusement les normes PMR (Personnes à Mobilité Réduite). Le rez-de-chaussée spacieux témoigne de cette exigence réglementaire transformée en atout fonctionnel.
Hall d’entrée multifonctionnel
L’aménagement du hall d’entrée est parfaitement optimisé :
- Placard de rangement intégré pour les vêtements des visiteurs
- Kitchenette ultra-équipée positionnée astucieusement sous l’escalier, permettant aux intervenants de se restaurer ou d’organiser des repas thérapeutiques
Cuisine sous escalier : l’élégance du noir mat
La cuisine noire installée sous l’escalier mérite une attention particulière. Le choix du noir mat apporte plusieurs avantages décisifs :
- Intemporalité : une couleur qui traverse les modes sans se démoder
- Facilité d’entretien : les traces et empreintes sont moins visibles sur le noir mat
- Élégance discrète : s’intègre parfaitement dans l’esthétique zen du lieu
- Contraste harmonieux : met en valeur les éléments en bois naturel
Espaces de soins fonctionnels et apaisants
Rez-de-chaussée optimisé
- Salle de douche PMR complète avec WC, lavabo et douche à l’italienne de plain-pied
- Salle de Pilates dédiée aux activités corporelles et à la remise en forme
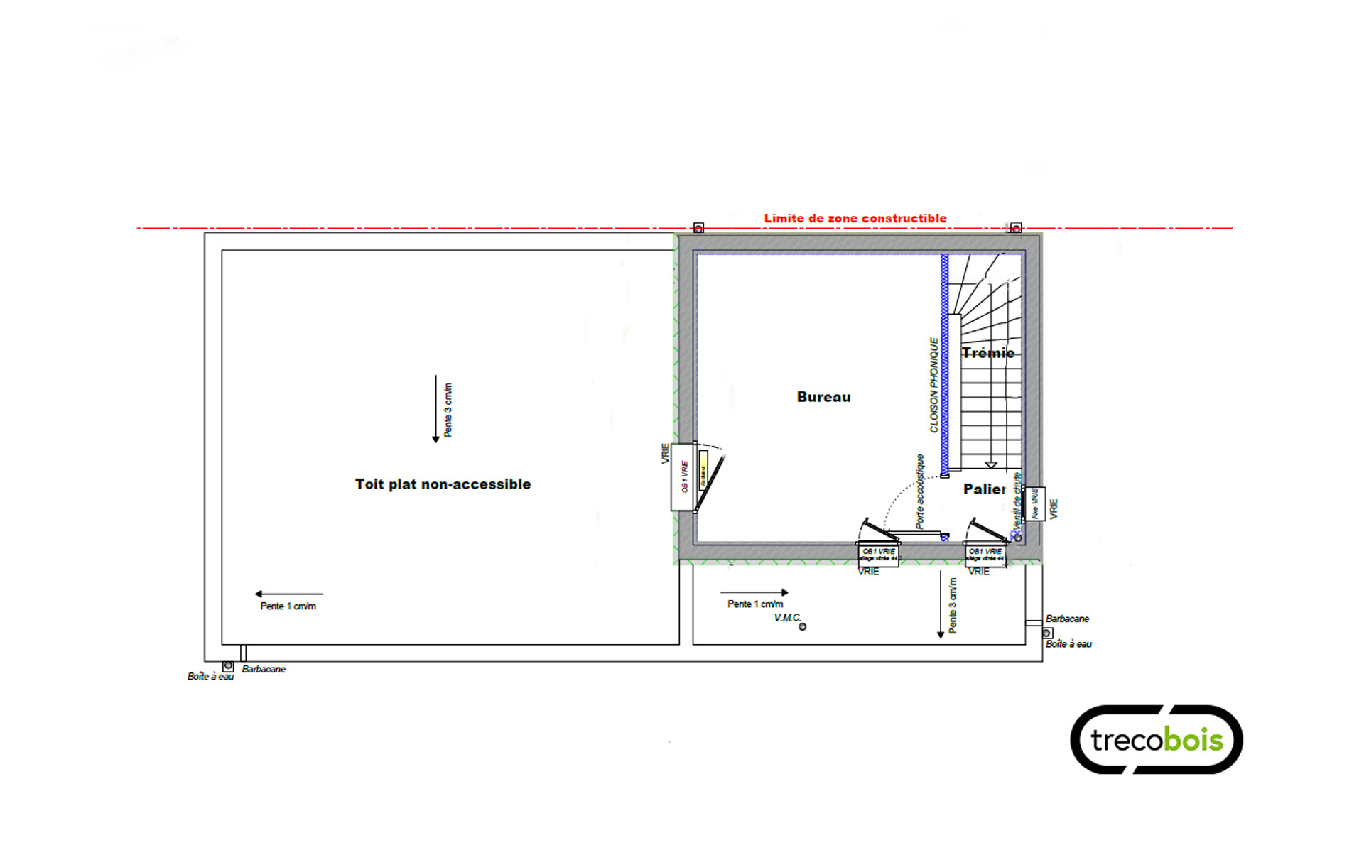
Étage professionnel
Le bureau à l’étage, équipé d’une table de massage, offre un espace intime et professionnel pour les soins individualisés et les consultations privées.
Ambiance zen et décoration thérapeutique
Palette de couleur apaisante
La décoration intérieure révèle une réflexion approfondie sur l’impact psychologique des couleurs. Les nuances de bleu dominent l’ensemble, apportant plusieurs bénéfices thérapeutiques :
- Effet calmant : le bleu favorise la relaxation et diminue le stress
- Sensation d’espace : cette couleur agrandit visuellement les pièces
- Concentration : facilite la méditation et les exercices de pleine conscience
- Fraîcheur : crée une atmosphère purifiante et ressourçante
L’association du bleu avec les tons bois naturel crée un équilibre parfait entre modernité et authenticité. Cette harmonie chromatique est sublimée par :
- Plantes vertes judicieusement disposées pour purifier l’air et renforcer le lien avec la nature
- Tableaux colorés apportant des touches d’énergie positive et de créativité
- Éclairage naturel maximisé par l’orientation des ouvertures
Trecobois Brest : constructeur de maison confortable
Cette réalisation exemplaire démontre la capacité de Trecobois, constructeur de maisons bois à Brest, à répondre aux défis les plus exigeants. Plus qu’une simple construction, c’est un véritable écosystème thérapeutique qui voit le jour, où architecture écologique et bien-être humain se rejoignent.
- Emplacement :
- Locmaria-Plouzané (29)
- Composé de :
- Un hall d'entrée, une kitchenette, une salle de douche, une salle de Pilates, une salle de consultation
- Constructeur :
- Trecobois, constructeur de maison en bois à Brest

