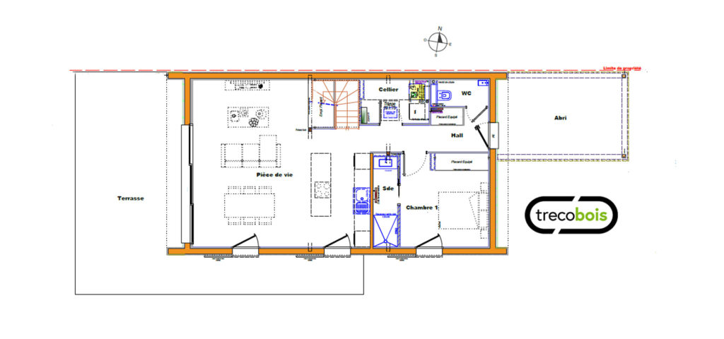
Plan d’une maison bois à étage avec toit cathédrale

Ce projet de maison bois de la gamme Trecobois Nature reflète l’alliance parfaite entre esthétisme contemporain et confort de vie. Ce projet a été imaginé par Trecobois, constructeur de maison bois à Lamballe.

Demande de contact

Conçue tout en longueur, cette habitation à étage se distingue par son bardage bois brûlé noir qui lui confère un caractère affirmé et résolument moderne, contrastant avec le bois Douglas naturel.

La toiture cathédrale double pente recouverte d’ardoise sublime l’architecture de cette construction bois, apportant une touche d’authenticité et d’élégance à l’ensemble.

Un rez-de-chaussée pensé pour la convivialité

Des espaces de vie généreux et lumineux

Le cœur de cette maison bois s’articule autour d’une vaste pièce de vie baignée de lumière naturelle. La cuisine linéaire ouverte, équipée d’un îlot central, s’intègre naturellement dans l’espace repas et le salon, favorisant les moments de partage en famille ou entre amis.

L’atout majeur de cet espace : une grande baie vitrée à quatre vantaux qui efface la frontière entre intérieur et extérieur. Cette ouverture généreuse prolonge naturellement la pièce de vie sur une terrasse en bois, idéale pour profiter des beaux jours.

Une suite parentale au rez-de-chaussée

Le rez-de-chaussée accueille également une chambre équipée de sa propre salle de douche attenante, offrant intimité et confort. Cette configuration permet d’envisager une vie de plain-pied si besoin.

Des espaces pratiques et fonctionnels

Les commodités n’ont pas été négligées avec la présence d’un WC indépendant et d’un cellier spacieux permettant d’accueillir le ballon d’eau chaude, le lave-linge, le sèche-linge ainsi que les rangements pour chaussures et manteaux.

À l’extérieur, un carport complète cet aménagement du rez-de-chaussée.

Un étage mansardé pour préserver l’intimité

Une mezzanine aux multiples possibilités

L’étage s’ouvre sur une mezzanine polyvalente qui peut se transformer au gré des envies et des besoins : coin lecture, espace jeux pour les enfants, bureau pour le télétravail ou encore salon intimiste. Cette flexibilité d’aménagement constitue un véritable atout pour s’adapter à l’évolution de la famille.

Deux belles chambres mansardées

L’étage accueille deux chambres spacieuses sous les combles, où la charpente apparente et les volumes sous toiture créent une atmosphère chaleureuse et cocooning.

Une salle de bain familiale

La salle de bain mansardée offre confort et fonctionnalité avec sa baignoire et ses deux lavabos. Un WC séparé complète cet espace nuit, garantissant le confort de toute la famille.

Des matériaux nobles et durables

Une ossature bois performante

Cette maison est construite selon le principe du mur à ossature bois, technique éprouvée qui associe performance thermique, rapidité de mise en œuvre et respect de l’environnement. L’habillage extérieur combine avec élégance le bardage bois brûlé et le bois Douglas, deux essences qui vieillissent admirablement et ne nécessitent que peu d’entretien.

Des menuiseries performantes

Les menuiseries en aluminium associées à des volets bois coulissants conjuguent performance énergétique, design contemporain et authenticité. Le bois coulissant apporte une touche traditionnelle qui adoucit la modernité de l’aluminium.

Un confort thermique optimal

Le système de chauffage a été étudié pour garantir un confort optimal dans toutes les pièces : un plancher chauffant au rez-de-chaussée diffuse une chaleur douce et homogène, tandis que des radiateurs basse température équipent l’étage.

Des revêtements de sol adaptés à chaque espace

Le carrelage habille l’ensemble des pièces du rez-de-chaussée à l’exception de la chambre, ainsi que la salle de bain et le WC de l’étage. Ce choix garantit facilité d’entretien et durabilité dans les zones de passage.

Les chambres sont quant à elles équipées de sol stratifié, un revêtement qui présente de nombreux avantages : confort acoustique, chaleur au toucher, esthétique bois authentique, facilité d’entretien et excellent rapport qualité-prix. Le stratifié apporte une atmosphère plus chaleureuse dans les espaces nuit, propice à la détente.

La gamme Trecobois Nature : quand l’esthétique rencontre le confort

Ce projet s’inscrit dans la nouvelle gamme Trecobois Nature, développée par le constructeur de maisons bois Trecobois pour répondre aux attentes des familles en quête d’une habitation combinant esthétisme contemporain, confort de vie et respect de l’environnement. Chaque projet de la gamme Nature est pensé pour créer des espaces de vie harmonieux où il fait bon vivre au quotidien.

Modèle :
Plan maison bois 110m² - Plan maison bois à étage - Plan maison bois bardage noir
Composé de :
Un carport, un hall d'entrée, un cellier, 2 WC, une suite parentale, une cuisine ouverte, une salle à manger, un salon, deux chambres mansardées, une mezzanine, une salle de bain

logo trecobois

> S’abonner à la Newsletter

> Parrainer un proche avec le Club Trecobat