L’architecture cubique résolument contemporaine de cette maison bois à étage trouve son identité dans un bardage bicolore qui structure et valorise l’ensemble. Ce plan de maison bois réalisé par Trecobois, constructeur de maison bois à Lannilis, démontre qu’exigence esthétique et performance énergétique se rejoignent naturellement dans la construction bois.
Un plan de maison original
L’identité architecturale de ce plan de maison bois cubique repose sur un jeu de volumes dynamique rehaussé par un bardage mixte Douglas naturel et bardage bois brûlé. Le Douglas naturel, posé horizontalement, contraste élégamment avec le bardage noir aux lignes verticales, créant ainsi une composition visuelle riche qui met en valeur chaque espace de la construction.
Le toit plat avec membrane adopte deux configurations : sans débord pour la partie en bardage noir et le garage, avec débord pour le volume à étage, accentuant ainsi la modernité des lignes tout en assurant une protection optimale.
Cette maison bois bicolore intègre également un garage attenant.
Plan du rez-de-chaussée : des espaces de vie ouverts et lumineux
Le plan de cette maison bois avec garage privilégie la fluidité des espaces de jour. Le rez-de-chaussée accueille :
- Un garage directement relié au cellier pour faciliter le retour de courses
- Une cuisine en U avec îlot central qui structure naturellement l’espace et sépare la zone de préparation de la salle à manger
- Un salon-séjour ouvert baigné de lumière naturelle, créant un vaste espace convivial
- Une suite parentale comprenant une salle de douche, offrant intimité et confort au rez-de-chaussée
- Des WC indépendants judicieusement positionnés près de l’entrée
L’optimisation de chaque mètre carré a été pensée dans les moindres détails : un placard de rangement est astucieusement intégré sous l’escalier, évitant tout espace perdu et maximisant les capacités de rangement.
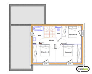
Un étage dédié à l’intimité familiale
L’étage de cette maison bois accueille un véritable espace nuit familial comprenant :
- 3 grandes chambres aux dimensions généreuses
- Une salle de bain et des WC séparés pour plus de confort au quotidien
- De grandes fenêtres oscillo-battantes tout en longueur dans chaque chambre, assurant luminosité maximale et ventilation optimale
Les fenêtres, séparées en deux avec ouverture par le haut uniquement, offrent une sécurité importante, particulièrement apprécié pour les chambres d’enfants.
Performance énergétique et construction écologique
Conforme à la réglementation RE2020, cette maison bois répond aux exigences environnementales les plus récentes. Sa construction repose sur :
- Des murs à ossature bois, garantissant d’excellentes performances thermiques
- Une isolation en laine minérale pour un confort optimal été comme hiver
- Une pompe à chaleur Air/Air pour un chauffage performant et économique
- Une VMC hygroréglable adaptant automatiquement la ventilation au taux d’humidité intérieur
Trecobois : votre constructeur de maisons bois en Bretagne
Spécialisé dans la construction de maisons bois, Trecobois accompagne votre projet depuis l’agence de Lannilis. Chaque réalisation bénéficie d’un savoir-faire reconnu et d’une attention particulière portée à vos besoins, pour une maison bois sur-mesure qui vous ressemble.
Vous souhaitez découvrir ce plan de maison bois ou adapter ce projet à votre terrain ? Contactez Trecobois pour échanger sur votre future construction bois en Bretagne.
- Modèle :
- Plan maison bois 4 chambres - Plan maison bois à étage
- Composé de :
- Un garage, un cellier, un hall d'entrée, 2 WC, une cuisine ouverte, un salon, une salle à manger, une suite parentale, 3 chambres, une salle de bain

