Découvrez cet avant-projet imaginé par l’agence Trecobois, constructeur de maisons bois à Quimper. Ce plan de maison de plain-pied de 90m² associe le charme d’une construction traditionnelle bretonne à la performance thermique du bois.
Une maison bois moderne à l’esthétique traditionnelle
Cette maison à ossature bois se distingue par son enduit blanc qui donne une allure contemporaine au projet, tout en conservant tous les avantages structurels et environnementaux du bois. La toiture traditionnelle à 2 pentes en ardoise Kergoat renforce l’harmonie avec le patrimoine architectural breton, tandis qu’une touche de bardage Douglas naturel au niveau de l’entrée apporte une note chaleureuse et authentique.
Un plan de plain-pied en bois fonctionnel et confortable
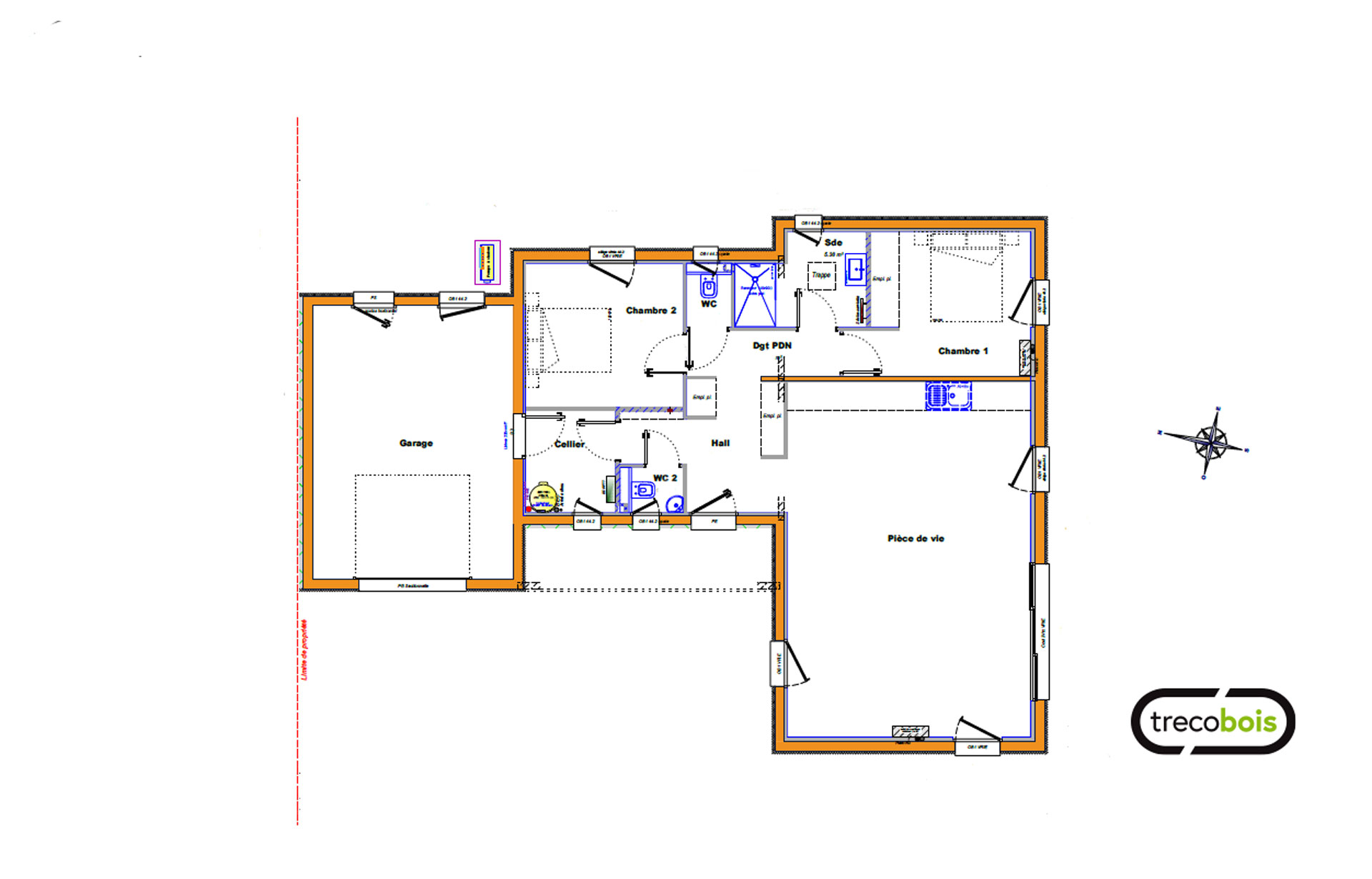
L’avant-projet propose une distribution intelligente des espaces sur 90m² :
Espace jour : la pièce de vie ouverte constitue le cœur de la maison, baignée de lumière naturelle grâce à une large baie vitrée 3 ventaux orientée plein Sud. Cette exposition optimale garantit luminosité et apports solaires gratuits tout au long de l’année.
Espace nuit : deux chambres confortables composent l’espace nuit, accompagnées d’une salle de douche équipée d’une douche à l’italienne et d’un lavabo. Pour davantage de praticité au quotidien, ce plan prévoit deux WC : un dans le hall d’entrée et un second du côté de l’espace nuit.
Espaces de rangement : un garage avec une porte sectionnelle motorisée et une porte de service. L »accès au cellier attenant, offrant de précieux espaces de stockage.
Des équipements performants pour un confort optimal
Ce projet de maison bois intègre des solutions techniques modernes pour garantir confort et économies d’énergie :
Performance énergétique
- Murs à ossature bois isolés avec de la fibre de bois pour une isolation naturelle et performante
- Pompe à chaleur air/air : système de chauffage économique et écologique qui puise les calories dans l’air extérieur
- Chauffage au sol dans toutes les pièces pour une diffusion homogène de la chaleur
- Sèche-serviettes dans la salle de bain pour un confort supplémentaire
Qualité de l’air et confort
- VMC hygroréglable qui adapte automatiquement le débit de ventilation au taux d’humidité
- Menuiseries en aluminium offrant d’excellentes performances thermiques et acoustiques
Les avantages d’une maison à ossature bois avec enduit
Cette solution constructive combine le meilleur des deux univers : vous profitez des performances thermiques exceptionnelles du bois (isolation naturelle, régulation de l’humidité, chantier sec et rapide) tout en bénéficiant d’une façade enduite qui s’intègre dans le paysage urbain et périurbain breton.
Vous avez un projet de construction de maison bois à Quimper ou dans le Finistère ? L’agence Trecobois vous accompagne dans la conception d’un plan personnalisé qui répondra à vos besoins et à votre budget. Contactez-nous pour échanger sur votre projet.
- Modèle :
- Plan maison bois plain pied 2 chambres
- Composé de :
- Un garage, un cellier, un hall d'entrée, 2 WC, une salle de douche, une pièce de vie ouverte, deux chambres
